LẮP ĐẶT PHÒNG XÔNG HƠI ĐÁ MUỐI MỚI NHẤT 2021
Phòng xông hơi đang là sản phẩm được mọi người ưa chuộng hiện nay. Đặc biệt là phòng xông hơi đá muối được các spa, home spa tin dùng. Bởi phòng xông hơi đá muối không chỉ giúp thư giãn mà nó còn giúp cải thiện sức khỏe, tim mạch, hô hấp.
Phòng xông hơi đá muối trên thị trường hiện rất đa dạng, về mẫu mã, chất lượng. Mang đến cho quý khách nhiều lựa chọn để mua được sản phẩm tốt, mức giá hợp lý, đáp ứng nhu cầu sử dụng.
Toàn Gia Thắng Sauna chuyên lắp đặt, thi công phòng xông hơi đá muối uy tín, chất lượng trên thị trường với mức giá phải chăng.
BÁO GIÁ, LẮP ĐẶT PHÒNG XÔNG HƠI ĐÁ MUỐI
Báo giá thi công, lắp đặt phòng xông hơi đá muối cần phụ thuộc vào những yếu tố sau: kích thước, chất liệu, máy xông, phụ kiện.
Thường phòng xông hơi đá muối có giá giao động từ 40 đến 60 triệu đồng một phòng. Tham khảo bảng báo giá vật tư phòng xông hơi đá muối dưới đây:

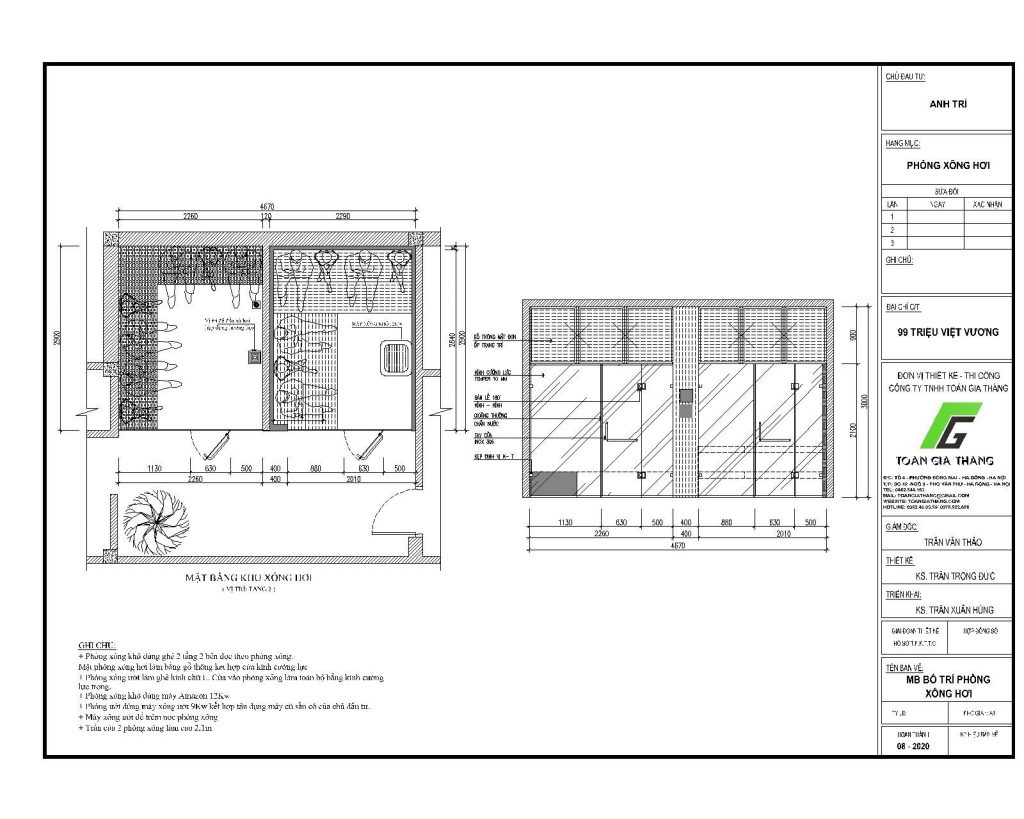
QUY TRÌNH LẮP ĐẶT PHÒNG XÔNG HƠI ĐÁ MUỐI
Để hoàn thành một phòng xông hơi đá muối không tốn qua nhiều công sức, nhưng để thể hiện vẻ đẹp tinh tế của gỗ thông và hiệu quả khi sử dụng thì cần phải làm theo những bước sau đây:
Bước 1: Chuẩn bị mặt bằng
Trước tiên chúng ta cần phải xác định được mặt bằng thi công. Hãy chọn vị trí lắp thuận tiện cho việc đi lại, dễ di chuyển, không bị ngập nước vì gỗ thông dễ hư hỏng khi quá ẩm ướt.
Sau khi chọn được vị trí, sẽ tiến hành đo đạc và lên bản vẽ chi tiết.

Bước 2: Chuẩn bị nguyên vật liệu
Một phòng xông hơi đá muối hoàn chỉnh cần những nguyên vật liệu như sau:
- Gỗ thông đã sấy khô
- Vách gỗ thông
- Trần phòng, sàn gỗ
- Đá muối Himalaya
- Khung bao máy và khung bao đèn bằng gỗ thông
- Đèn sauna, nhiệt kế, đồng hồ cát, đồng hồ đo độ ẩm
- Máy xông hơi khô và đá xông
- Các thiết bị hỗ trợ để tiến hành lắp phòng: khoan, búa, đinh, keo…

Bước 3: Tiến hành lắp đặt phòng xông
- Đầu tiên, chúng ta cần dựng khung xương phòng. Khung phòng sẽ dựng theo kích thước có trong bản vẽ. Nên cần lựa chọn khung xương gỗ thông kích thước chiều dài, rộng và cao theo kích thước của phòng.
- Khung phòng sẽ được lắp chắc chắn và cố định, để có thể lắp các vách gỗ vào mà không bị đổ.
- Cách dựng khung là dựng thẳng thanh gỗ thông theo chiều dọc của phòng. Tiếp theo sẽ dựng các vách đá muối Himalaya, vách gỗ, trần, ghế, cửa và khung bao máy.
- Các thanh gỗ thông có rảnh kết nối các miếng gỗ lại với nhau nên việc lắp ghép các khung vách trở nên dễ dàng hơn.
- Bắn trần phòng thực hiện từ vách, trả ra lần lượt từng mối nối và mặt sàn cũng tương tự.
- Lắp cửa phòng xông khô thì có thể cửa gỗ thông hoặc kính cường lực, nên sau khi lắp hoàn chỉnh vách phòng, ghế, khung bao máy và các phụ kiện khác trong phòng thì chún ta sẽ tiến hành lắp cửa vào.
*Các lưu ý khi lắp các phụ kiện:
- Máy xông lắp một vị trí góc của phòng để tránh chiếm nhiều diện tích sử dụng và nhất thiết gần cạnh bục ngồi xông hơi để người dùng dễ sử dụng và tưới nước lên đá xông hơi. Máy cần bao khung gỗ thông kín để an toàn cho người dùng.
- Đồng hồ cát nhiệt kế, đèn sauna cần lắp chiều đối ngược với máy xông để tránh nhiệt trực tiếp từ máy bốc ra gây nổ hay hoạt động không chính xác.
- Bảng điều khiển máy được lắp bên ngoài phòng bên cạnh cửa phòng xông. Máy xông khô đấu với nguồn điện 1 pha hoặc 3 pha tùy vào công suất máy.

Sau khi lắp hoàn chỉnh sẽ tiến hành vệ sinh sạch sẽ phòng để bắt đầu tiến hành test máy.
Bước 4: Kiểm tra, vận hành máy
- Kích hoạt nguồn điện, tiến hành cài đặt nhiệt độ, thời gian, chế độ sử dụng.
- Tiến hành trải nghiệm.
LỢI ÍCH CỦA PHÒNG XÔNG HƠI ĐÁ MUỐI
Cải thiện lưu thông tuần hoàn máu, cải thiện sức khỏe tim mạch, giúp máu lên não tốt hơn
Giảm huyết áp, giảm căng thẳng, giúp bạn trở nên thư thái, cải thiện sức khỏe, chữa lành tâm trí và tăng khả năng tập trung.
Xóa tắc nghẽn, nghẹt mũi, giúp phổi hô hấp tốt hơn
Tăng cường sức khỏe làn da, chống lão hóa giúp da luôn căng mịn
Hỗ trợ phục hồi các bài tập luyên về cơ bắp
Giảm đau các khớp gối, các chi, các cơ giãn nở giúp giảm trấn thương khi tập luyện
Tăng cường hệ thống miễn dịch, đề kháng tốt hơn, loại bỏ các virus gây hại từ bên ngoài
TOÀN GIA THẮNG SAUNA CHUYÊN CUNG CẤP, TƯ VẤN – LẮP ĐẶT PHÒNG XÔNG HƠI UY TÍN.
Dịch vụ uy tín
Chúng tôi đảm bảo yếu tốt chất lượng của thiết bị phòng xông hơi cũng như thiết kế, thi công đúng chuẩn.
Các mẫu phòng xông hơi
Đúng chuẩn, đảm bảo sự thoải mái cho khách hàng, an tâm khi sử dụng. Từ thiết kế một phòng xông hơi sang trọng, đẳng cấp, hay lắp đặt một phòng xông hơi gia đình giá rẻ.
Suppot 24/7
Đừng ngại gọi cho chúng tôi, để được hỗ trợ về kỹ thuật và giá thành tốt nhất!
Tham khảo thêm: Phòng xông hơi ướt
MỌI CHI TIẾT XIN LIÊN HỆ:
——————————————————————
CÔNG TY TNHH TOÀN GIA THẮNG
Địa chỉ: Số 42, Ngõ 8 – Văn Phú – Hà Đông – Hà Nội
Xưởng Sx : Khu đô thị Thanh Hà, Cự Khê, Thanh Oai, Hà Nội
>>> Phòng kinh doanh: 0978 922 686 – 02466 844 168
>>> Phòng kỹ thuật: 0962 48 99 55 – 0976 066 296
E.lapdatphongxonghoi.com@gmail.com
W.https://lapdatphongxonghoi.com/
F. https://www.facebook.com/Toangiathangsauna

